Altes Hallenbad

Das architektonisch eng mit dem Schulzentrum verbundene Hallenbad wurde mit minimalinvasiven Mitteln und hohem Respekt vor der Bestandssubstanz umgebaut.

Der Charme des 1970er-Jahre-Baus wurde erhalten, ergänzt durch gezielte Elemente wie die Wiederverwendung einer Theatertribüne aus dem Musiktheater Linz. Ein speziell eingepasstes 3D-Soundsystem macht den Veranstaltungsraum auch technisch einzigartig.

Hard Facts

Max. Personen300 Personen (inkl. Team & Artists)
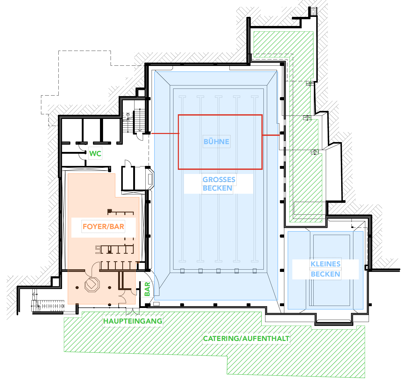
Großes Becken25m x 12.5m
Kleines Beckenca. 10m x 8m
Foyeroptionaler Eingangs- und/oder Barbereich
Vorstand und Team in großen Becken
Blick von außen auf das Alte Hallenbad

Technik & Ausstattung

Technische Ausstattung
  • Bühne: 30 Bühnenelemente (10m x 6m)
  • Ton: L-Acoustics, A&H SQ6, kleines Mischpult
  • Licht: 6Movingheads, 4 Profiler, 12 Scheinwerfer, ChamSys QuickQ 20
  • Ambisonics: OTTOsonics-System mit 36 Kanälen
  • Präsentation: Beamer & Leinwand
Flexible Technik
  • Mikrofone
  • XLR-Kabel
  • Klinken-Kabel
  • Mikrofonstative
Ausstattung
  • 300 Veranstaltungssessel
  • 6 Stehtische
  • 6 Holztische
  • 5 Tische verschiedenster Art
  • Reinigungsequipment
  • 2 Kühlschränke
  • Kühlzeile